Uitbreiding Resilux

De firma Resilux wil een nieuwe activiteit uitbouwen op de terreinen in stookte. Onder een nieuwe naam - Poly Recycling West
Europe - wil het zelf instaan voor de productie van PET korrels. Hiervoor is een aanvraag ingediend voor het plaatsen van een grondwaterwinningsput, het verharden van een brandweg, het plaatsen van 12 silo's en het uitbreiden van de stockage van allerlei grondstoffen, ... Een schets van de aanpassingen zijn in het roze hieronder terug te vinden.

De silo's hebben dezelfde afmetingen als de 16 bestaande silo's vooraan. Daarnaast komen er twee dieselaggregaten, extra koeling, ... wat een flinke impact kan hebben op de buurt. De volledige aanvraag kan je vinden op het omgevingsloket maar bevat een 60-tal documenten.

Onze bezorgdheden rond deze aanvraag kan je vinden onder de rubriek bezorgdheden.

Details

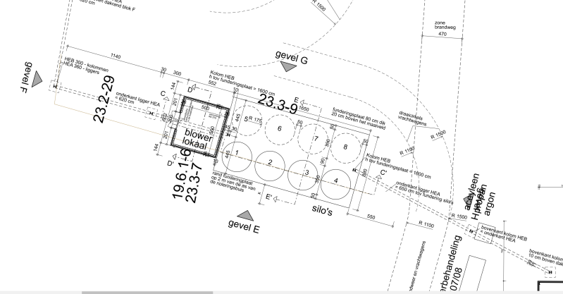
Nieuwe locatie met silo's

Op de gemarkeerde plaats komen 8 nieuwe silo's en een blower lokaal. Deze worden verbonden via bovengrondse leidingen met de verschillende gebouwen.

Extra silo's

De bestaande 16 silo's aan de voorkant worden uitgebreid met 4 extra silo's tot 20 silo's in totaal (1 en 2 zijn ondertussen reeds geplaatst):

Brandweg

Achteraan wordt een brandweg en toegang voor vrachtwagens voorzien zoals aangegeven met de rode lijn. 

Opslag

De huidige parking voor vrachtwagens wordt opslag voor flakes (vlokken). Dit wordt vergelijkbaar met de opslag achteraan. Het vroegere gebouw van Chocolatier Colpaert wordt magazijn.

Hoogspanning, nieuwe machines en diesel aggregaten

De omzetting van vlokken naar kunststofkorrels zal gebeuren in een deel van de gekochte gebouwen. Hier komt ook een hoogspanningscabine om alles van de nodige/immense hoeveelheid energie te voorzien. Er komen ook twee noodgeneratoren.